Die modern und geschmackvoll eingerichtete Ferienwohnung befindet sich im 1. Obergeschoss
Über den einladenden Eingangsbereich mit Garderobe gelangen Sie in den hellen und großen Wohnraum mit komplett ausgestatteter Küchenzeile. Die beiden Schlafzimmer mit je zwei Betten, laden nach einem erlebnisreichen Tag zum Entspannen und Erholen ein. Das Elternschlafzimmer ist mit einem Doppelbett und einem Kinderbett ausgestattet. Das andere Zimmer hat zwei Einzelbetten. Das helle Bad ist mit einer Dusche und WC ausgestattet.
- Gemütliches Wohn-Esszimmer
- Komfortable, ausgestattete Küche
- Elternschlafzimmer mit Kinderbett
- Modernes Kinderzimmer
- Modernes Badezimmer
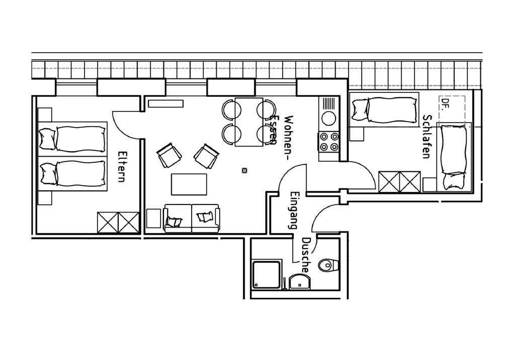
- Grundriss der Ferienwohnung 1
Wohnung
- Ca. 60 m²
- 4 Sterne (DTV-Klassifizierung)
- 1 Schlafzimmer mit Doppelbett
- 1 Schlafzimmer mit 2 Einzelbetten
- 1 Badezimmer mit Dusche und WC
Für Kleinkinder steht im Elternschlafzimmer ein spezielles Gitterbett bereit. Hochstühle sind frei zugängig und können bei Bedarf genutzt werden. Eine Waschmaschine ist für alle Gäste an einem zentralen Ort vorhanden. Bei Ankunft sind die Betten bereits für Sie bezogen. Frische Handtücher liegen bereit.
Weitere Informationen
- Handtücher, Bettwäsche und Endreinigung sind inklusive.
- Mitzubringen sind: Spülmaschinentaps, Müllbeutel, Toilettenpapier, Stiefel und Fahrradhelm zum Reiten, gerne auch Handtücher zum Schwimmen
Ausstattung
- Geschirrspüler
- Mikrowelle mit Backofenfunktion
- Kaffeemaschine
- Wasserkocher
- Toaster
- Geschirr und Besteck
- Fön
- Getrennte Betten
Preise
- Preis für 4 Personen und weniger: in der WS 79,- € / Nacht; NS 89,00 € / Nacht und in der HS 99,00 € / Nacht – jede weitere Person 10,00 € / Nacht; in der NS und HS werden immer min. 3 Nächte berechnet; in den Ferien und vom 08.05. - 04.09.2021 vermieten wir nur Wochenweise Samstag - Samstag
- 2 - 5 Nächte einmalig plus 50,00 €







